Dom na sprzedaż Zławieś Wielka, Czarne Błoto

4 pokoje
159.20 m²
8 103,02 zł/m2
BLU-DS-7095
Oblicz ratę kredytu

1 290 000 zł

Dom na sprzedaż
Nowa oferta

Szczegóły oferty

Symbol oferty BLU-DS-7095
Powierzchnia 159,20 m²
Powierzchnia użytkowa [m2] 159,20 m²
Powierzchnia działki [m2] 790 m²
Liczba pokoi 4
Liczba sypialni 3
Rodzaj domu wolnostojący
Technologia budowlana bloczki betonowe
Garaż w bryle
Okna PCV
Instalacje nowe
Liczba tarasów 1
Zagosp. działki zagospodarowana
Ukształtowanie działki płaska
Kształt działki prostokąt
Pokrycie dachu papa termozgrzewalna
Pozwolenie na użytkowanie tak
Stan budynku BARDZO WYSOKI STANDARD
Ogrodzenie działki częściowo ogrodzona
Tarasy taras duży

Opis nieruchomości

NOWOCZESNY DOM PREMIUM | PARTEROWY | 4 POKOJE | GARAŻ W BRYLE | DZIAŁKA 790 m² | CZARNE BŁOTO

Biuro pośrednictwa w nieruchomościach Blue-Home ma przyjemność zaprezentować Państwu wartą szczególnej uwagi ofertę sprzedaży nowego gustownie wykończonego 4 POKOJOWEGO PARTEROWEGO DOMU WOLNOSTOJĄCEGO Z GARAŻEM W BRYLE o pow. 159,20 mkw zlokalizowanego w podtoruńskiej miejscowości Czarne Błoto.

Nieruchomość znajduje się na zagospodarowanej działce o pow. 790 mkw.

Wnętrze domu zostało wykończone wysokiej jakości materiałami z przywiązaniem uwagi do każdego detalu.

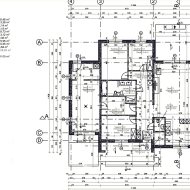
Nieruchomość składa się z 4 POKOI:

- przestronny salon z jadalnią (35,48 mkw), w którym znajduje się wyjście na zadaszony taras
- otwarta kuchnia
- 3 sypialnie
- łazienka z wanną i prysznicem
- wc 
- pralnia 
- schowek/garderoba
- hall 
- duży garaż dwustanowiskowy z 
- pomieszczenie gospodarcze

Standard wykończenia wnętrza: 

Salon: ściany – gładzie i tynk dekoracyjny, podłoga – panele
Pokoje: ściany – gładzie, tynki dekoracyjne, podłogi – dębowe 
Kuchnia: ściany - gładzie, kafelki, podłoga – kafle
Łazienka: ściany – glazura, podłoga – gres
Hall: ściany – tynk dekoracyjny, podłoga – panele

Kuchnia wykonana pod wymiar ze sprzętem agd w zabudowie.

W salonie znajduje się kominek.

Drzwi wejściowe antywłamaniowe.

Okna PCV w kolorze antracytowym z roletami zewnętrznymi.

Dom ogrzewany jest przez pompą ciepła z funkcją chłodzenia.

W całym budynku zastosowano ogrzewanie podłogowe.

Część ogrodowa zagospodarowana.

W cenie nieruchomości znajduje się kompletne wyposażenie i umeblowanie widoczne na zdjęciach.

Bardzo spokojna okolica w otoczeniu terenów leśnych.

Oferta idealna dla klienta pragnącego uciec od miejskiego zgiełku.

Cena - 1 290 000 zł

Zapraszamy na prezentację!

Usługa pośrednictwa jest płatna.

Karol, 883 900 224

Blue-Home Nieruchomości
Szosa Chełmińska 175A/6 
87-100 Toruń
wł. Agnieszka Płachta
NIP 879-185-37-94

Lokalizacja nieruchomości

Kalkulatory

Kalkulator kredytowy

Wysokość raty

PLN
%

Kalkulator kosztów

Podatek od czynności cywilno-prawnych

Taksa notarialna
(opłata notarialna)

Wniosek o wpis do WKW

VAT od prowizji
agencji nieruchomości

Vat od taksy notarialnej
(opłaty notarialnej)

Prowizja agencji nieruchomości

Wypisy aktu notarialnego

Razem

Uwaga: mogą wystąpić dodatkowe opłaty za założenie księgi wieczystej oraz ustanowienie hipoteki.

PLN
PLN
PLN
PLN
PLN
PLN
%
PLN

Podobne oferty

Dom na sprzedaż

Zławieś Wielka, Czarne Błoto

4 pokoje 184 m2 7 899,32 zł/m2

Agent

Proszę wprowadzić poprawne imię i nazwisko
Proszę wprowadzić poprawny numer telefonu
Proszę wprowadzić poprawny adres e-mail
Proszę zaznaczyć wymagane zgody
Rozwiąż równanie:
23 8
Niepoprawny wynik